Via Maj 30
2015/20 - Bergamo - Realizzato, con Sergio Camerlenghi
Residenza per 23 alloggi con destinazione housing sociale
For description in English:
CS_ENG
L’idea: innovazione sociale e rigenerazione urbana
Nel 2015 la fondazione privata Morzenti Onlus di Bergamo si è impegnata in un importante progetto sociale e immobiliare denomi nato “via maj 30” finalizzato a dare una casa a persone che si trovano in situazione di fragilità e di vulnerabilità. L’impresa, condotta con il patrocinio dell’amministrazione comunale di Bergamo, ma interamente finanziata dalla Fondazione, si è conclusa nel 2020 con la consegna alla città di un manufatto architettonico per residenze socialmente assistite che ha riqualificato un’area urbana degradata e che è un esempio di innovazione costruttiva e di sostenibilità ambientale.
La committenza e i protagonisti
La Fondazione Morzenti Onlus è nata con lo specifico intento di coniugare architettura e sostegno sociale. Ha tratto spunto da progetti simili sviluppati nella vicina metropoli milanese ed ha intrapreso la sua attività firmando una specifica convenzione con il Comune di Bergamo. Ha individuato i gestori sociali del complesso architettonico in La Bonne Semence e nella Fondazione Casa Amica, che dovranno occuparsi di un utilizzo corretto ed efficace del complesso architettonico.
Ha individuato i due architetti progettisti in Sergio Camerlenghi e Gabriele Pimpini che conoscono molto bene la città di Bergamo dove hanno lavorato e lavorano.
Il complesso architettonico
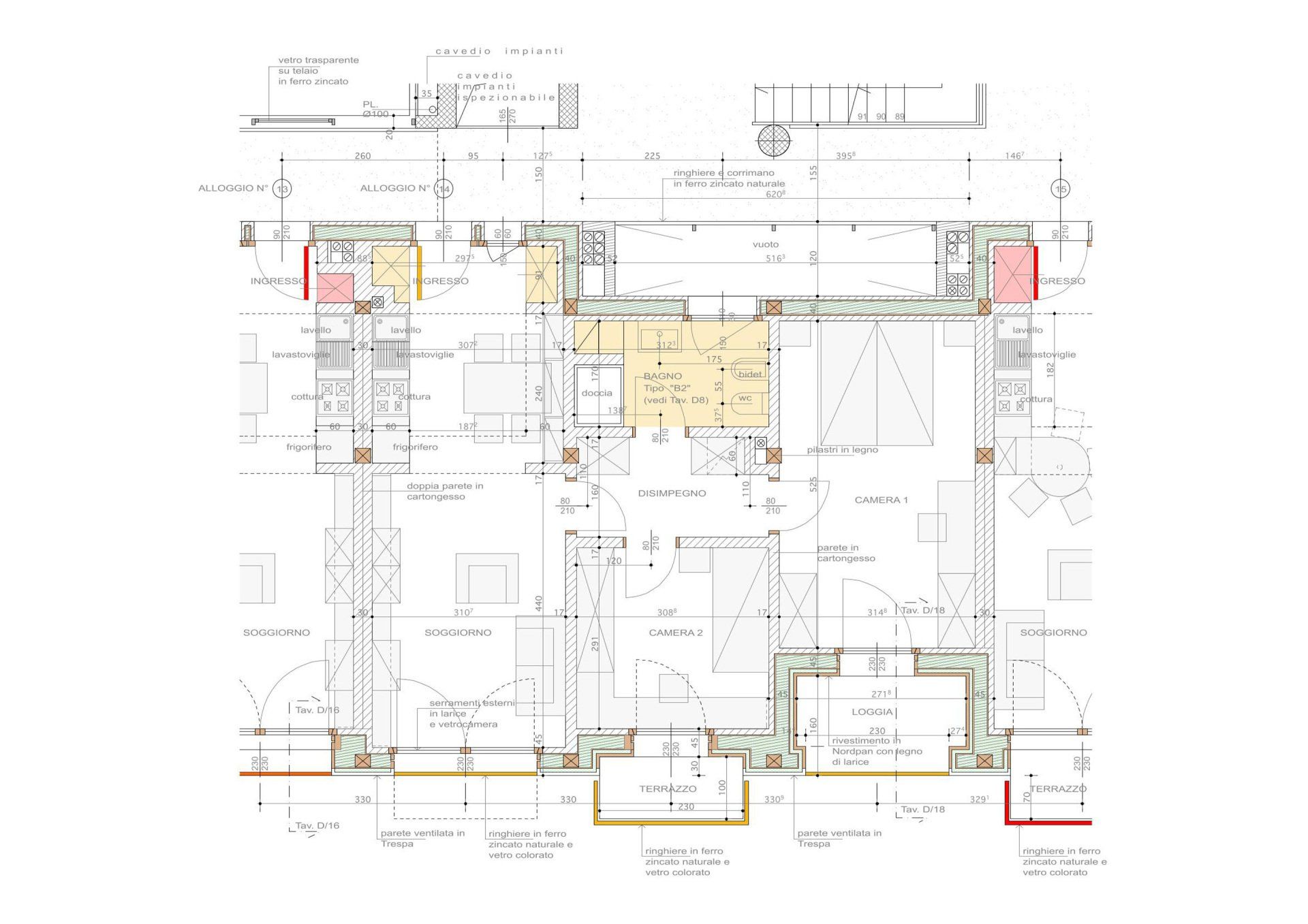
L’area in cui insiste il complesso architettonico è situata nel centro novecentista di Bergamo. Ospitava un distributore di benzina ormai dismesso e i lavori hanno richiesto un'importante e onerosa opera di bonifica del terreno, eseguita con la supervisione dei tecnici di svariati enti pubblici competenti. Dal sito si gode di una vista privilegiata della Città alta di Bergamo, che è uno dei gioielli dell’urbanistica italiana medievale e moderna. La nuova costruzione, di un piano interrato e di 6 piani fuori terra, si articola in due direzioni: un primo volume è allineato agli edifici attigui e dà continuità al fronte tutto costruito sulla via Angelo Maj; un secondo volume, caratterizzato da ballatoi e spazi pubblici, entra nell’area perpendicolare al primo. Entrambi sono articolati con gradoni e terrazze private e condominiali che inquadrano la suggestiva Bergamo Alta.
La facciata su via A. Maj è caratterizzata dai vetri colorati dei balconi. Il colore è un motivo dominante l’estetica del complesso ed è stato adottato sia per testimoniare vitalità energia e luminosità sia per generare negli abitanti del complesso, attraverso l’individuazione per colore delle diverse unità abitative, un senso di appartenenza.
L’intero edificio è composto da 23 appartamenti di metrature diverse, dai 30 ai 70 mq. Ogni appartamento dispone di parcheggio per auto e per biciclette, di cantina e usufruisce degli ambiente comuni, per la raccolta dei rifiuti, per la convivialità etc… Oltre alle abitazioni, il complesso ospita una lavanderia a gettoni, quattro studi medici, un bar-ristorante-rivendita di prodotti alimentari gestito da una cooperativa sociale, una sala polivalente a disposizione dei residenti, ma anche degli abitanti di quartiere e della città. Particolare attenzione è stata data a tutto ciò che può favorire la socializzazione degli abitanti: ambienti comuni tra i piani: ampi terrazzi, spazi nei ballatoi, spazi verdi attrezzati all’aperto.
Ben 7 dei 23 alloggi sono destinati a persone che soffrono di disagio psichico e saranno gestiti dalla cooperativa Le Bonne Semence che ha lunga esperienza in questo tipo di assistenza. Gli altri 16 alloggi, organizzati dalla Fondazione Casa Amica, sono destinati a nuclei familiari con difficoltà economiche e che non possono pagare affitti di mercato: giovani coppie, famiglie immigrate, studenti poveri, etc…
Innovazione tecnologica
Il piano interrato e il piano terra del complesso sono realizzati in cemento armato, mentre dal primo piano fino alla copertura la costruzione, sia per le strutture portanti sia per i divisori verticali e orizzontali è realizzata completamente in legno e composta a secco.
La scelta di materiali ecocompatibili e a basso consumo energetico è all'avanguardia nella transizione ambientale della tecnologia del costruire in Italia. Questo sistema avanzato di prefabbricazione comporta una preventiva ed intensa ingegnerizzazione del progetto, ma consente poi una accelerazione nella costruzione e nella realizzazione delle finiture. La struttura dell’intero complesso “via maj 30” (i cinque piani fuori terra e la copertura) è stata realizzata con tre operai montatori in soli novanta giorni di lavoro senza interruzioni, con evidenti risparmi nei tempi e nei costi del cantiere.
Per aumentare le prestazioni energetiche, l'edificio è dotato di pannelli fotovoltaici, di riscaldamento a pavimento e di approvvigionamento calore da rete di teleriscaldamento cittadina. Tutti gli appartamenti appartengono alla classe energetica A e sono gas-free, senza allacciamento alla rete del gas metano cittadina.
Il cantiere e le imprese
I progettisti Camerlenghi e Pimpini hanno selezionato per la costruzione 2 principali attori:
l’impresa Cividini, ing.e Co. S.R.L. di Dalmine (Bg), molto conosciuta a Bergamo che si è occupata di tutte le opere edili in c.a., dell’impiantistica e delle strutture in ferro e vetro;
l’impresa Rubner Holzbau S.p.A. di Bressanone (Bz), che lavora a livello nazionale e internazionale, e che ha curato le opere in legno, i serramenti, il manto di copertura, le facciate.
Luogo
Italia - Bergamo
Architetti
Sergio Camerlenghi & Gabriele Pimpini
Anno
2015 | 2020
Foto
Roberto Marossi




































